Vila H
info
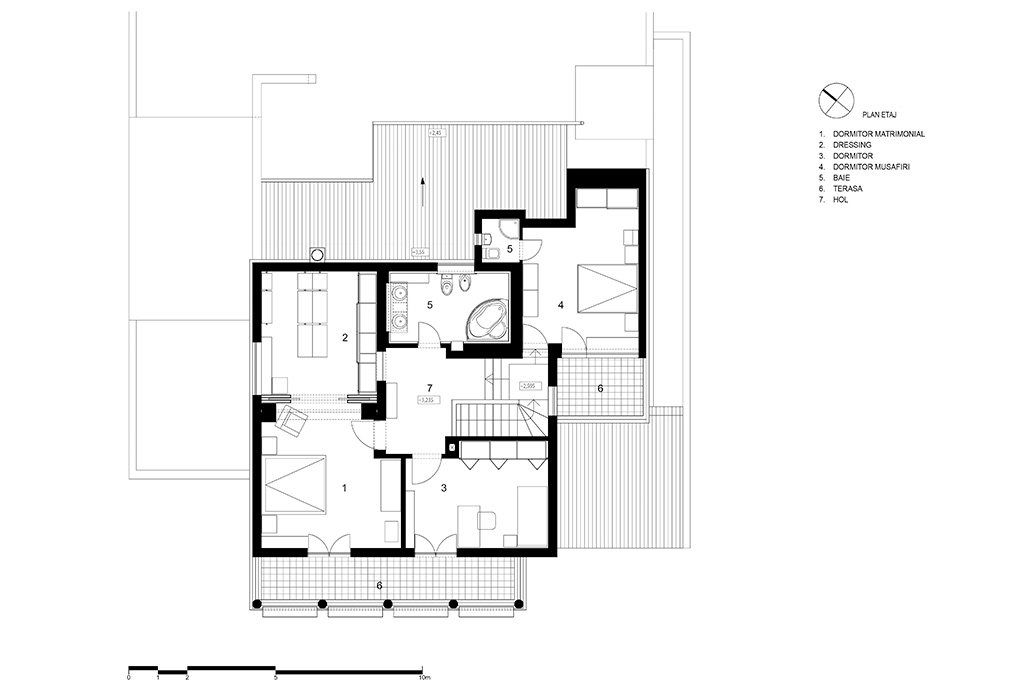
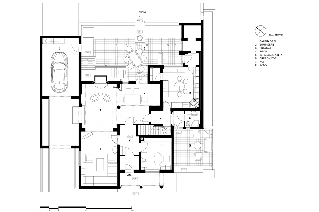
Program: Recompartimentare si amenajare locuinta S+P+1
Amplasament: Str Herastrau, Bucuresti
Suprafata construita: 320mp
Suprafata teren = 500mp
Client: Privat
An finalizare: 2009
Amplasament: Str Herastrau, Bucuresti
Suprafata construita: 320mp
Suprafata teren = 500mp
Client: Privat
An finalizare: 2009