Restaurant Ori?Ori
info
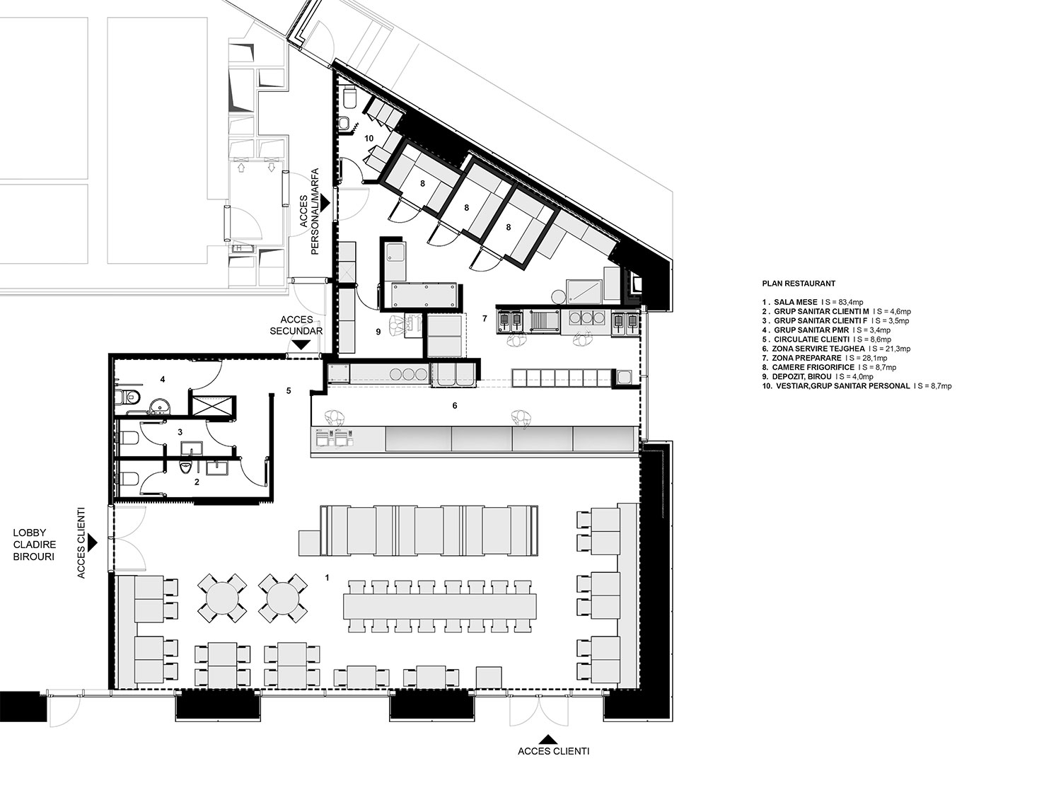
Program: HoReCa
Amplasament: Unirii View Office Building, Bucuresti
Suprafata construita: 200mp
Client: Privat
An finalizare: 2019
Program: HoReCa
Amplasament: Unirii View Office Building, Bucuresti
Suprafata construita: 200mp
Client: Privat
An finalizare: 2019